![]()
Cập nhật nhanh chóng và chính xác lịch khai giảng của các lớp theo từng khóa
|

- Giúp học viên hiểu rõ và thể hiện nhanh chóng, khoa học, chính xác các loại bản vẽ kiến trúc-xây dựng
Nội dung:
- Sử dụng mô hình không gian giúp hviên hiểu rõ bản vẽ KT-XD: tổng thể, mặt đứng, mặt bằng, mặt cắt, chi tiết
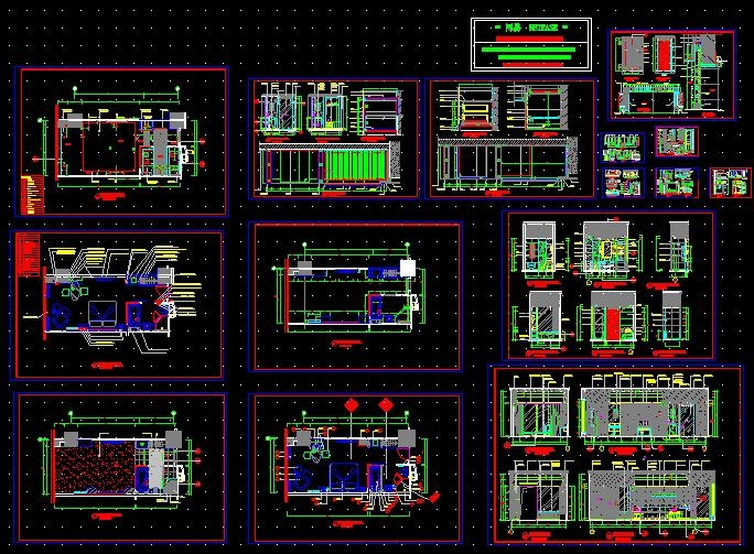
- Các cấu tạo kiến trúc thông dụng, các pp thể hiện
- Các cấu tạo kết cấu CT dân dụng thông dụng, các pp thể hiện (chỉ dành cho hv ngành XDDD)
- Các cấu tạo CT cầu, đường, các pp thể hiện (chỉ dành cho hv ngành Cầu, Đường)
- Quản lý hồ sơ bản in
Đối tượng:
- Đã học xong môn AC